买卖易供应链旗下当餐优选是以餐饮美食、短视频媒体矩阵、餐饮供应链品牌溯源、线上对接会&线下对接活动、源头工厂供应商、供应链咨询服务、餐饮人才资源服务等相关业务为一体,全网领先的餐饮供应链综合平台!
随着社会的发展,人们的生活得到了极大的改善,开始追求良好厨房环境,所以对厨房的的装修要求也是越来越多了,特别是商用厨房。就拿餐厅厨房的装修来说吧,商用餐厅厨房排烟系统就变成了厨房装修最先要考虑到的环节。那么厨房排烟设计方案应当怎样去做?才能够让你的餐厅厨房没有油烟的困扰。只有你的餐厅厨房装修设计的简洁美观并且好用,那才会给厨房工作的人带来良好的工作环境。下面小编就带大家一起来看一下关于商用厨房排烟系统的难题吧。
厨房排烟管道系统的设计和安装不合理,往往会造成厨房排烟不通畅,直接影响油烟净化器的使用,其主要原因有以下几种:
一、主排烟管道通风面积不够
根据工程经验,排烟主管道内风速不能超过15m/s,否则在运行一个时期以后很容易造成排烟系统不通畅。在油烟净化器的运行实践中,大部分案例都是因排烟管道通风面积不足引起的不通畅,管道内气体的流速都在15m/s以上。
二、管道截面积变小
排烟管道由于要穿过建筑梁而使管道通风截面积变小,截面上阻力增加,造成气流不通畅。
三、排管道使用后积聚物堆积
排烟管道在穿过建筑梁或躲避其它设备管道时,排烟管道中的一段会低于整体排烟管道平面,在使用一段时间后,由于油水混合物会积聚在较低的那段排烟管道中,直接影响排烟通畅。
四、低层排烟不顺畅
不同楼层的厨房油烟通过同一主管道排出,离出口近的楼层厨房排烟效果较好,而较低楼层的厨房排烟不通畅。
五、建议配备排烟风机
对于油烟较大的商用厨房,建议还配备一个排烟风机。常用的排烟风机有轴流风机、风机箱和离心风机3种。
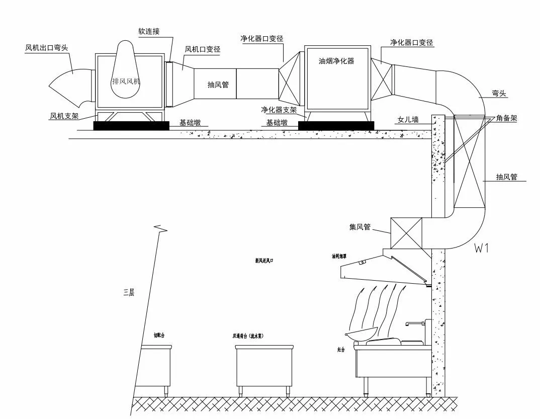
高空排风系统示意图
高空排放:排风风机、(油烟净化器)、放置在楼顶,通过管道将风机和排烟罩相连接并将油烟排放至屋面高空
优势:由于楼顶等位置基本没有人,因此排风风机产生的油烟以及噪音等污染不会对周围的人或环境产生直接的影响。
劣势:造价成本高,楼层太高的话安装存在风险。设备需搬运至楼顶或者吊装。需在楼面安装设备处预作基础墩。
低空排风系统示意图
低空排放:排风风机、(油烟净化器)、放置在地面,通过管 道将风机和排烟罩相连接并将油烟排放至室外。
优势:由于风机、净化器安装在地面上,因此安装方便,且由于管道距离少因此相较于高空排放来说管道产生的风阻较少,排烟效果能好一些。
劣势:容易产生噪音、油烟的污染,以及对室外空间的要求较高,最好做消音机房处理。
其实商用厨房的设计装修还有很多环节,所以你需要选择一个专业设计团队,才会避免后续出现问题!当餐优选商用厨房设备公司是一家专业的厨房设计公司,从设计到厨房设备销售、安装、售后给您一条龙的服务,欢迎广大客户前来咨询!
商用厨房排烟系统原理
商用厨房排烟系统是由烟罩、排烟烟道、止回阀,排烟风机,油烟净化器系统等组成,其任务是排出在炒制菜品的过程中产生的大量烟气。中餐本身炒制的烟雾就比较大,对于厨房来讲工作人员很多,烟气过大也会影响工作和人体健康,所以必须保证产生的烟气尽快有效的实现排放。现在人们已经清楚地认识到设计安装好新风排烟系统和确保系统的性能长期良好运行的重要性和必要性。
关于餐饮业商用厨房排烟管道制作也是很讲究的,需要根据商用厨房内部的厨房设备炒灶,低汤灶,煲仔炉,大锅灶等数量的多少进行设计,管道的横截面大小、厨房排烟的排烟总量、以及新风补风量的大小,现场的安装条件等都是关乎决定这厨房排烟效果的因素,厨房设计之初必须根据厨房设备炉具、进行勘察现场条件,这样厨房排烟才会有良好的效果。
一般来说厨房排烟管道的水平段不宜太长,一般水平远距离不应超过15m并且要有2%以上的坡度,水平末端设活接头,厨房油烟净化器以及排烟管道需要定期进行清洗,以达到国家环保要求。排风速度按规范不得低于 10m/s,以防风速过低使油附着于烟道上,接排风罩的支管应设风量调节阀,所以厨房排烟的重要性不言而喻。
当餐希望对大家有所帮助,关于团餐服务公司,餐饮食材供应,食材配送供应商,餐饮食材配送,社区食堂承包,医院营养食堂,学校食堂承包,工地饭堂外包等一站式新鲜蔬菜配送服务,欢迎通过当餐官网咨询!更多餐饮信息发布请联系当餐网,食材招商、加盟;团餐需求,食品采购,生鲜配送一站式餐饮供应链服务平台;买卖易农产品交易平台,餐饮食材供应链提供批发、贸易、冷链、食材采购等服务,支持交易、直播、电商等功能。
当餐优选供应商合作
本文发布于2026年02月27日16:33,已经过了49天,若内容或图片失效,请留言反馈 餐饮食材网当餐供应链温馨提示:当餐原创文章版权归当餐网创作者所有,转载务必注明作者和出处;当餐优选,您身边的餐饮食材供应链伙伴。当餐为餐厅、酒店、茶饮、团餐、食堂等各类餐饮企业,提供涵盖蔬菜禽肉、米面粮油、调味料、饮料饮品及简餐原料等全品类食品一站式采购配送服务。依托稳定高效的供应链,保障当餐食材品质与配送时效,让餐饮采购更省心,经营更高效。当餐网转载文章仅仅代表原作者观点,不代表当餐立场,图文版权归原作者所有!如有侵权,请通过平台客服联系当餐网工作人员删除。
转载请注明出处: 当餐网
当餐网链接地址: http://dangcan.com/canchu/9283.html
-
食材净化器是“智商税”吗
近年来食材净化器成了厨房新宠。苏泊尔、九阳、东菱等品牌纷纷推出了各种型号的净化设备,宣传中称能有效去除农药残留、细菌等有害物质。 这些常见的果蔬食材净化器主要利用活氧(臭氧)、电解水(羟基自由基)、超声波或等离子等技术来清洁食材。 臭氧型清洗机:内置臭氧发生器,将空气中的氧气(O₂)电离产生臭氧(O₃),臭氧溶于水后会分解出氧原子,这些氧原子氧化力强,可破坏...
2026/02/08
-
嘉美包装全产业链食品饮料包装与灌装,全国布局品质护航!
一、公司介绍 公司简介:嘉美食品包装(滁州)股份有限公司的主营业务是食品饮料包装容器的研发、设计、生产和销售及提供饮料灌装服务。公司的主要产品是三片罐、二片罐和无菌纸包装。 公司亮点:主营食品饮料金属包装及饮料灌装,三片罐市占率领先,实控人拟变更 二、公司资讯 2025年三季报每股收益0.04元,归母净利润3916.02万元,净利润同比增长率-47.25% ...
2025/12/24
-
餐饮食材网2025年餐饮装备与智能设备市场年终盘点
2025年,中国餐饮装备市场迎来智能化、数字化与环保化的全面升级,市场规模达400-500亿元,年增长率保持在9.5%-10.5%。随着人力成本持续攀升、消费者对现炒现做需求增强以及环保政策收紧,智能炒菜机器人、食材精华设备等创新产品成为行业焦点。餐饮食材网基于最新行业数据与实战案例,全面盘点2025年餐饮装备市场格局、销售榜单及解决方案,为酒店、连锁餐饮等...
2026/01/03
-
2026年火爆餐饮项目即将闪亮登场
2025年餐饮市场规模持续扩大,其中尤以现炒快餐最为亮眼,各路餐饮品牌犹如雨后春笋般涌现而出,造就了一个又一个餐饮品牌神话。这其中最大的功臣便是智能炒菜机和复合调味料。一个是解放厨师、节省人工,一个是标准化出餐、确保口味统一。因此让餐饮品牌连锁发展更加快速高效。2026年已悄然来临,现炒浇头赛道将会更加火爆,谁先抢占先机,谁就能先入为主快速扎根。我们一如既往...
2026/01/07
-
冰箱收纳小技巧,食材分类不串味,省电又卫生!
食材分区收纳法:给每种食物安个“专属座位” 打开冰箱门看到乱糟糟的食材堆,是不是瞬间没了做饭的心情?学会科学分区,不仅拿取方便,还能延长食材保鲜期。 冷藏区黄金分区✅ 上层门架:适合存放酱料、饮料、调味品(温度相对稳定)✅ 中层区域:剩菜剩饭、熟食、即食食品(需密封)✅ 下层抽屉:蔬菜、水果(湿度较高,建议用透气保鲜袋分装) 冷冻区收...
2025/12/15
-
厨卫家电使用知识:冰箱食材分区存放指南
合理分区能最大化保鲜效果,减少食材串味和浪费,餐饮食材网以下按冰箱常规结构(冷藏室、冷冻室、变温室)标注各区域特性及适配食材,适配多数家庭使用场景。一、冷藏室(0-8℃):短期保鲜核心区冷藏室是日常食材的主要存放区,不同层架温度略有差异,从上到下温度逐渐降低,可按食材特性对应存放。1. 冰箱门架(温度最高,约5-8℃)适配食材:瓶装调味品(酱油、醋、蚝油)、...
2025/12/31

当餐网 














网站地图




餐饮食材网暂无评论